
Garantwoningen Zomerzorg
De garantwoningen Zomerzorg liggen naast WZH Bezuidenhout.
Bij de garantwoningen Zomerzorg huurt u een woning en kunt u een beroep doen op de voorzieningen van WZH Bezuidenhout.
De locatie
De garantwoningen bevinden zich aan de rand van het gezellige stadsdeel Haagse Hout. Het is een mooie wijk met veel groen. In de Theresiastraat vindt u leuke winkels, een bibliotheek en horecagelegenheden. Met het openbaar vervoer (tram, trein en bus) kunt u alle kanten uit, bijvoorbeeld naar de binnenstad of naar Scheveningen.
De woningen bevinden zich aan de Bezuidenhoutseweg 152 t/m 218 te Den Haag.
Alle voorzieningen binnen handbereik
Bij Zomerzorg is het comfortabel wonen met in de buurt voorzieningen zoals een kapsalon, pedicure, levensmiddelenwinkel, restaurant, huisarts, fysiotherapie en tandarts.
Voor ontspanning en recreatie kunt u gebruikmaken van een gemeenschappelijke ruimte. De actieve bewonerscommissie organiseert voor de huurders allerlei activiteiten voor ontspanning en recreatie.
U woont zelfstandig in de garantwoning van Zomerzorg. Momenteel kunt u alleen koffiedrinken in het naastgelegen woonzorgcentrum WZH Bezuidenhout.
De woningen
Zomerzorg bestaat uit 32 tweekamerwoningen. Alle woningen zijn voorzien van een zitkamer met open keuken, een slaapkamer, een badkamer met toilet en een ruime inpandige berging. Enkele woningen beschikken over een kleine hobbyruimte en/of serre. De woningen op de bovenste etage beschikken over een balkon.
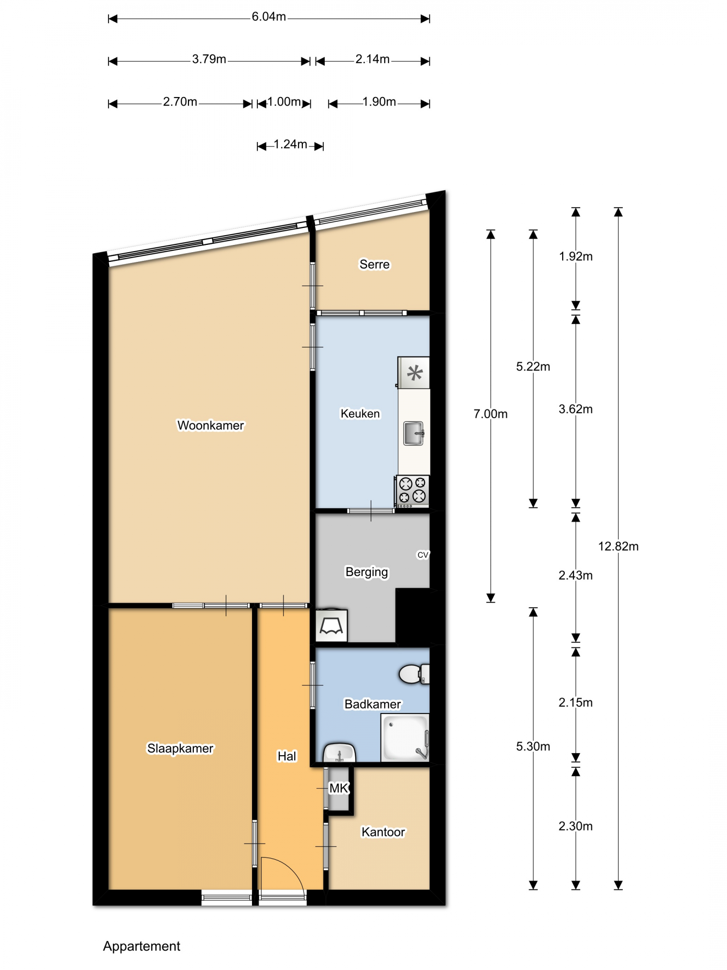
Hieronder vindt u plattegronden van garantwoningen type B2 en type C1.
Type B2:

Type C1:

De woning die u uiteindelijk krijgt aangeboden kan afwijken van de hierboven staande plattegronden.
In Zomerzorg kunt u gebruikmaken van services en diensten:
- Wonen met basisservice: in al onze wooncomplexen zorgen wij voor schoonmaak en onderhoud van de gemeenschappelijke ruimtes en tuin.
- Wonen met extra services: in Zomerzorg bieden we extra services aan, zoals: personenalarm, een receptie, een restaurant, een activiteitenprogramma, verzorging, verpleging en begeleiding.
De kosten
De kosten voor een garantwoning bedragen tussen de € 500 en € 600 (kale huur). Het voorschot op de servicekosten bedraagt € 70 (per 1 juli 2022).
De woningen zijn sociale huurwoningen. Dit betekent dat het bruto verzamelinkomen voor alleenstaanden niet hoger mag zijn dan € 29.400 en voor tweepersoonshuishoudens € 39.925 (prijspeil 2026). Dit zijn de inkomens die in principe voor huurtoeslag in aanmerking komen. U kunt eventueel huurtoeslag aanvragen bij de Belastingdienst. De Belastingdienst beslist of u inderdaad in aanmerking komt voor huurtoeslag.
Als u bepaalde aanpassingen wilt doen aan uw woning, bijvoorbeeld beugels of speciale kranen aanbrengen, dan worden deze in veel gevallen vergoed in het kader van de Wet maatschappelijke ondersteuning (Wmo). Soms moet u zelf een klein bedrag bijbetalen.
Contact en inschrijven
Als u in één van de garantwoningen van Zomerzorg wilt komen wonen, heeft u geen indicatie nodig. De minimum leeftijd is 67 jaar. U huurt de woning van WZH. Wilt u meer informatie? Neem dan contact op met de Klantbemiddeling Centraal van WZH via:
Telefoon: 070 - 756 16 00.
Wilt u zich inschrijven? Vul dan dit inschrijfformulier in.